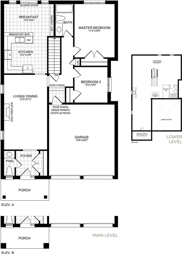
THE RAVEN A
Courtice Glen - Single-Family Homes
Courtice, Bowmanville
Rosemary A
The Willows
Courtice, Courtice
Rosemary C
THE RAVEN C
Rosemary B
THE GRANITE A
THE PEBBLES B
THE OAK C
Single-family homes are coming soon to Kingsview Ridge in Oshawa
Discover living at Kingsview Ridge, a master-planned community of 30’, 36’ and 40’ singles with a variety of designs and floorplan options.