hero-image-0

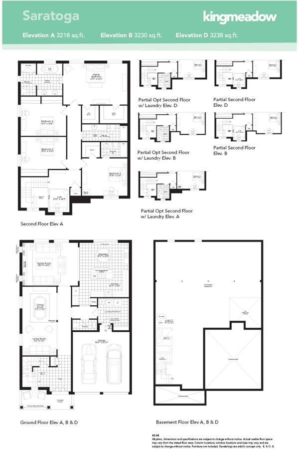
Saratoga Plan

By

Minto Group

   |   

Kingmeadow

Kingmeadow
Sold
Sold
4
3
1
From 3,218
unit-banner-imageunit-banner-imageunit-banner-image
Saratoga Plan details
Saratoga Plan is now sold.
Check out available nearby plans below.