




























Get additional information including price lists and floor plans.
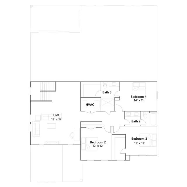
This new two-story home features a first-floor owners suite that offers a comfortable retreat with a full bathroom and walk-in closet. Near the front of the home off the foyer are a secondary bedroom and a flex space, ideal as an office or studio. An open-concept floorplan with easy access to a covered patio encourages simple indoor-outdoor living and entertaining. Three additional secondary bedrooms can be found on the second floor near a shared living space in the loft.
Stay informed with Livabl updates on new community details and available inventory.