




































































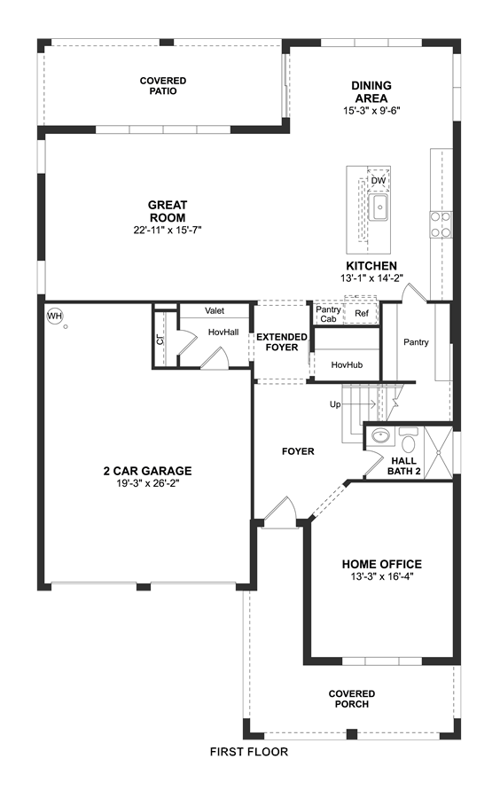
Private home office off foyer for working from home. Spacious great room with plenty of windows for natural sunlight. Beautiful kitchen with large island and roomy pantry. Expansive covered patio off dining area. Luxurious primary suite with bath and walk-in closet. Versatile loft on second floor.  
Stay informed with Livabl updates on new community details and available inventory.