













































Images coming soon
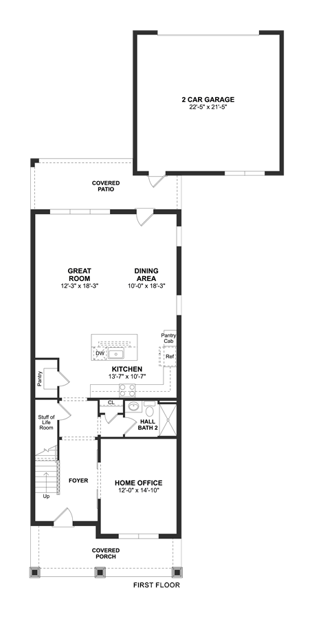
Open-concept kitchen with center island and oversized pantry. Spacious great room with access to covered patio. Private home office or optional Extra Suite off foyer. Lavish primary suite with tray ceiling and walk-in closet. Relaxing primary spa bath with dual sinks and shower. Convenient second story laundry in proximity to bedrooms.
Stay informed with Livabl updates on new community details and available inventory.