













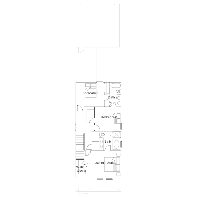
With a family-oriented design, this two-story home features an open concept layout shared among the main living area, kitchen and dining room to promote seamless transitions between spaces. Tucked at the back of the first floor is a study well-suited as an office space. All three bedrooms are situated upstairs, including the owners suite with a lavish bathroom.