
















































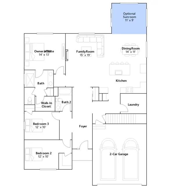
Designed for low-maintenance living, this single-story home showcases an open-concept kitchen that overlooks the family room and dining room in an ideal set-up for seamless transitions between spaces. At the front of the home are two secondary bedrooms to provide restful retreats, while in a back corner is the private owners suite with a full-sized bathroom. A two-car garage offers versatile storage room.
Stay informed with Livabl updates on new community details and available inventory.