
















Images coming soon
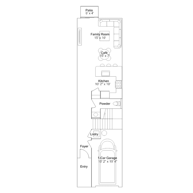
This new two-story townhome features a modern layout with an open-concept floorplan on the first floor consisting of a stylish kitchen, cozy caf and inviting family room. An outdoor patio is easily accessible off the main living area. Three bedrooms can be found upstairs, including the luxurious owners suite, which enjoys a private area at the front of the home complete with an en-suite bathroom and walk-in closet.
Stay informed with Livabl updates on new community details and available inventory.