
































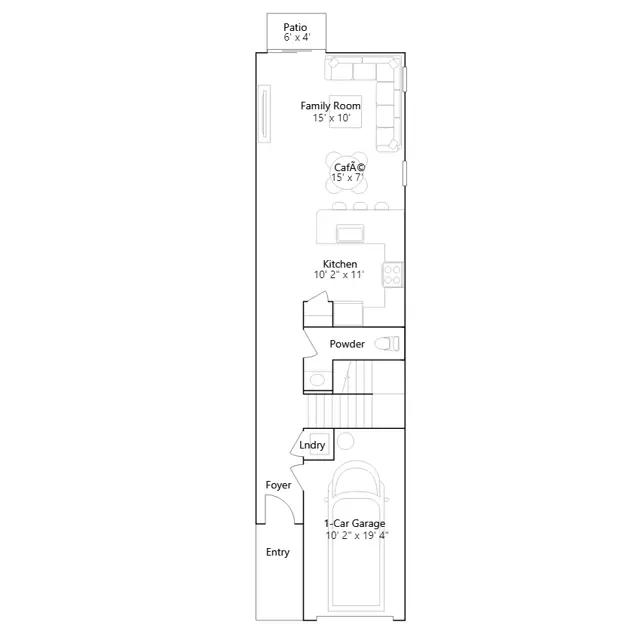
The first floor of this new two-story townhome is host to a modern open floorplan that combines the kitchen with the living and dining areas, and an outdoor patio is easily accessible off the main living area. Four bedrooms can be found upstairs, including the expansive owners suite, complete with a private bathroom and walk-in closet for added comfort and convenience.
Stay informed with Livabl updates on new community details and available inventory.