























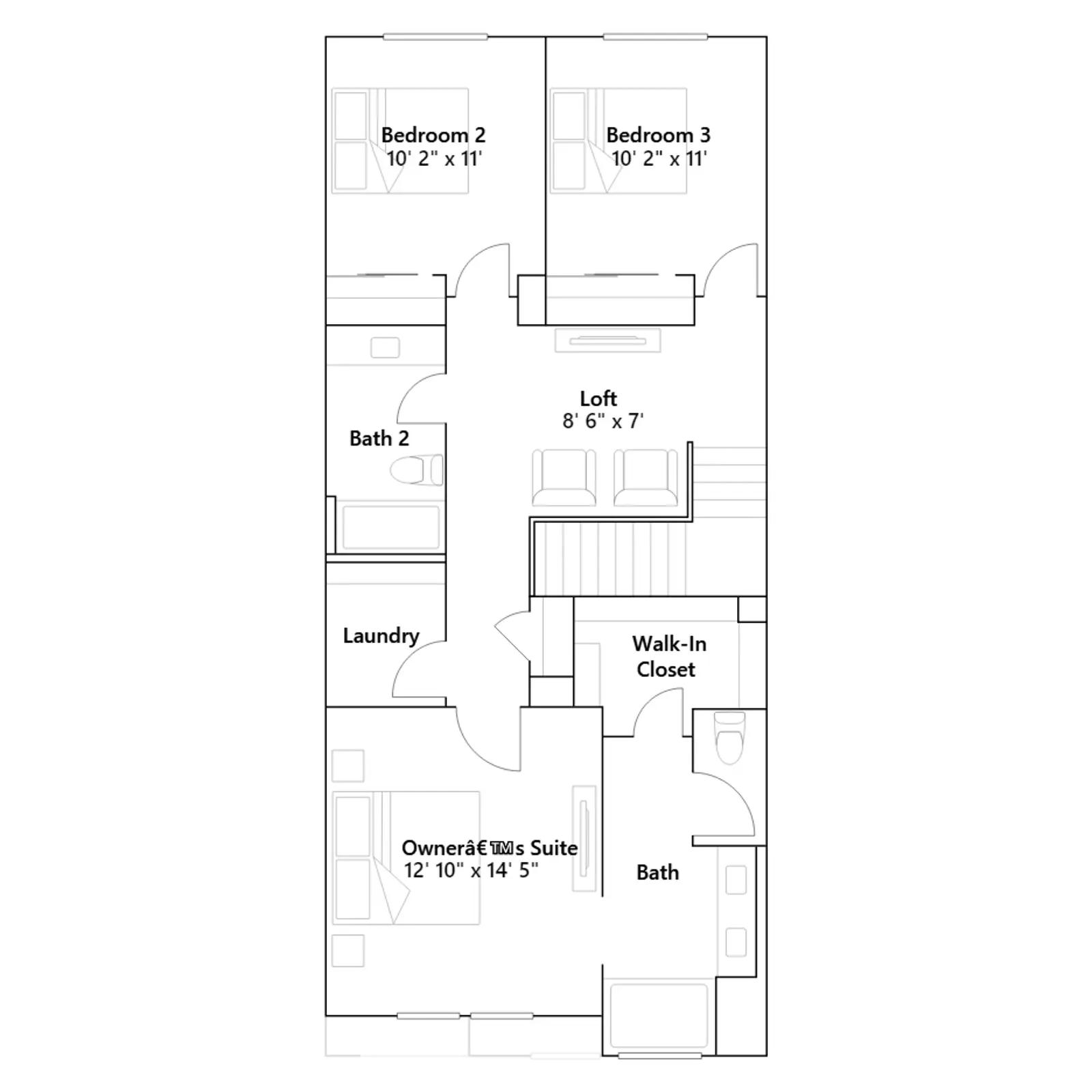
This new two-story home features an open-concept layout on the first floor that blends the kitchen, living and dining areas for seamless transitions and everyday multitasking. On the second floor, an inviting loft provides a versatile shared living area easily accessible from two bedrooms and a lavish owners suite with a full bathroom and walk-in closet.
Stay informed with Livabl updates on new community details and available inventory.