







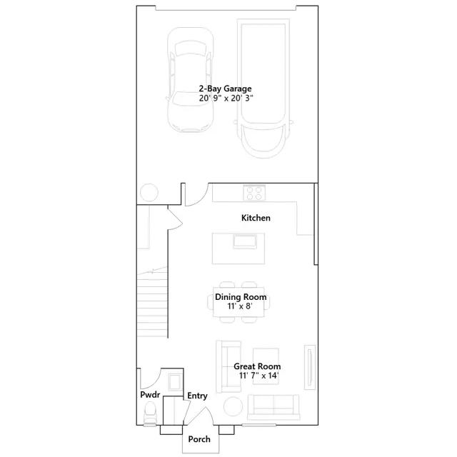
This new two-story townhome offers plenty of space to live and grow. On the first floor, an inviting open-concept layout combines the kitchen, living and dining areas to maximize interior space. All three bedrooms are located on the second floor for optimal comfort and privacy, including a lavish owners suite with a full bathroom and walk-in closet, just steps from a versatile flex space.
Stay informed with Livabl updates on new community details and available inventory.