


















Get additional information including price lists and floor plans.



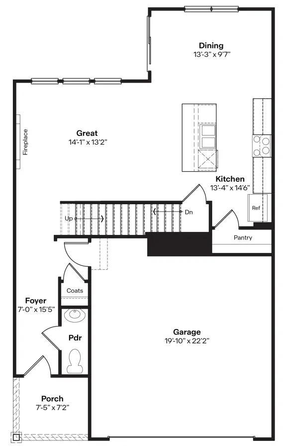
The Edmon is one of our 2-story floor plans featured in the Westbrook Hills community in Omaha, NE. Featuring 4 bedrooms, 2.5 bathrooms, 2 car garage and 1,844 sq. ft. of living space. As you enter the home from the covered porch and walk down the foyer you will pass the guest bathroom, garage door entrance and stairs leading to the second level. Continuing down the foyer you are welcomed into the heart of the home. The living room is spacious allowing for a variety of set-ups and furniture arrangements. Additionally, three large windows overlooking the backyard allow for plenty of natural light to shine in. Flowing from the living room is the kitchen, dining room and sliding door that leads to the back deck/patio. The kitchen is a true highlight, with white cabinetry, quartz countertops, stainless steel appliances, a walk-in pantry and an oversized built-in is...
Stay informed with Livabl updates on new community details and available inventory.