














































Get additional information including price lists and floor plans.
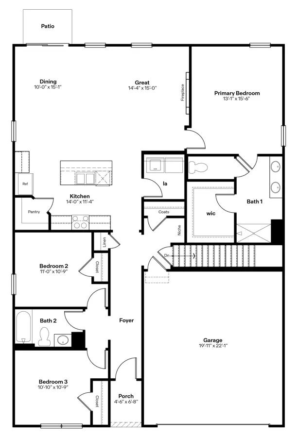
The Neuville is a one-story floor plan featured in the Mirabel community in Omaha, NE. Inside this 3-bedroom, 2-bathroom home, youll find 1,635 sq. ft. of comfortable living space. This ranch style home provides an open concept kitchen overlooking the living area, dining room, and back patio and is great for homebuyers in any stage of life. Entertaining is a breeze, as the Neuville home features a spacious living room that flows seamlessly into the dining area and kitchen. You will enjoy the charming ambience that this floor plan provides with the electric fireplace that is both stylish and functional as well as the large windows that youll find throughout the main level - all of which allow natural light to fill the home. The kitchen is the true highlight of this home with white cabinetry, quartz countertops, stainless steel appliances, a large island, and a c...
Stay informed with Livabl updates on new community details and available inventory.