







































Get additional information including price lists and floor plans.
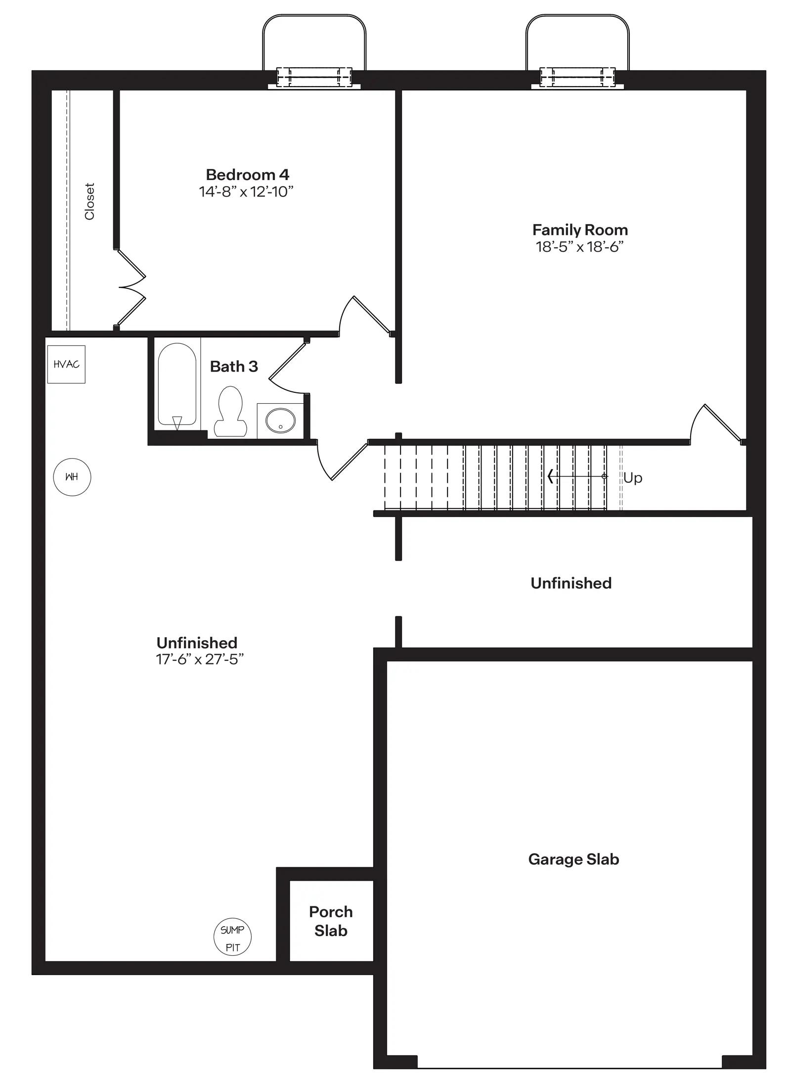
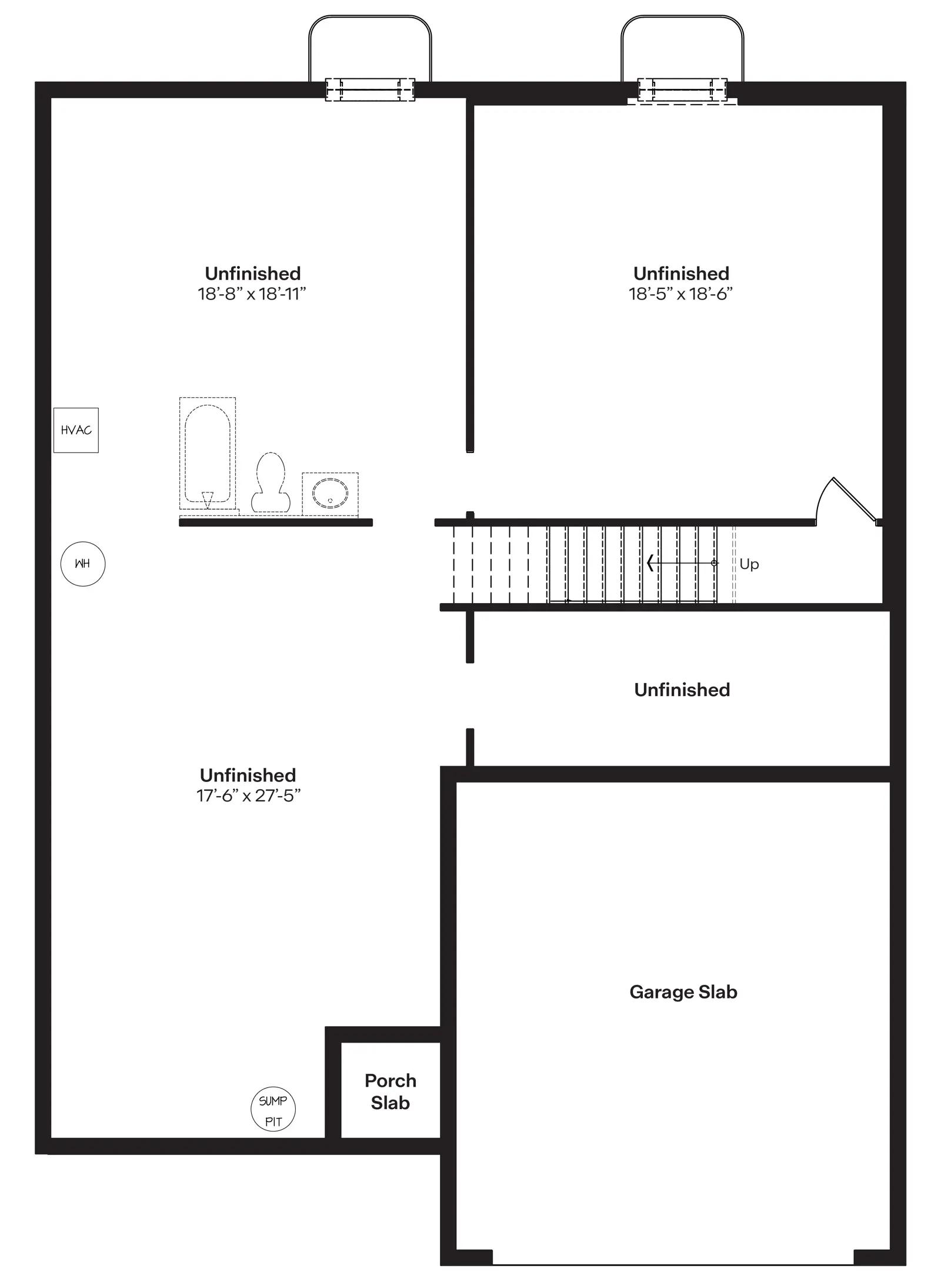
The Hamilton is a popular ranch-style floor plan featured in the Enclave Flats in Omaha, NE. Inside this 4-bedroom, 3-bathroom home with a finished basement, youll find 2,191 sq. ft. of comfortable living space. This ranch style floor plan optimizes living space with an open concept layout in which the kitchen is overlooking the living room, dining area, and back patio/deck. Entertaining is a breeze, as this charming single-family home features the living room and dining area in the heart of the home. The living room offers a cozy ambience with an electric fireplace that is both stylish and functional as well as large windows that allow natural light to shine in. The gourmet kitchen features white cabinetry, quartz countertops, stainless steel appliances, a built-in island, and a large corner pantry with tons of storage space. In every bedroom youll have...
Stay informed with Livabl updates on new community details and available inventory.