




















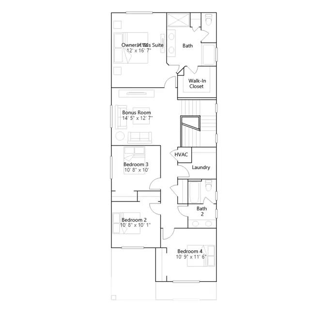
The first level of this two-story home is host to a spacious open floorplan where the Great Room, kitchen and dining room share a footprint. Sliding glass doors lead to a covered patio for effortless indoor-outdoor living and entertaining. All four bedrooms surround the versatile bonus room on the second level, including the luxe owners suite which features a restful bedroom, en-suite bathroom and walk-in closet.