

















































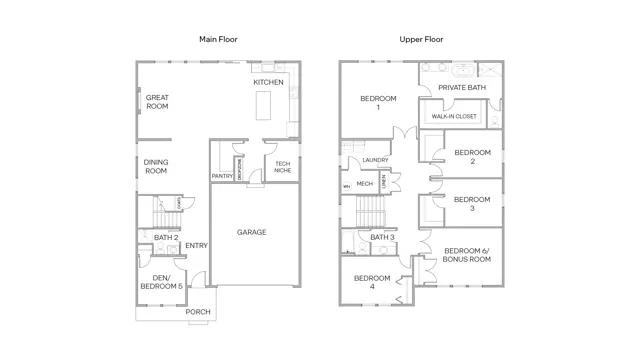
From the front door and preserved throughout, elegant touches and thoughtful design are sure to impress. Just off entry, a main floor bedroom is placed perfectly for a home office or cozy den. A formal dining room leads you into the spacious great room and kitchen, a joy to entertain and relax in. Towards the garage, discover additional storage and flex space with a walk-in pantry and versatile tech niche. Journey upstairs and explore the jaw-dropping primary suites luxurious 5-piece bathroom and walk-in closet. Completing this superb home, an expansive bonus room, full bathroom, and three additional bedrooms bring the Legacy together.
Stay informed with Livabl updates on new community details and available inventory.