










































Images coming soon
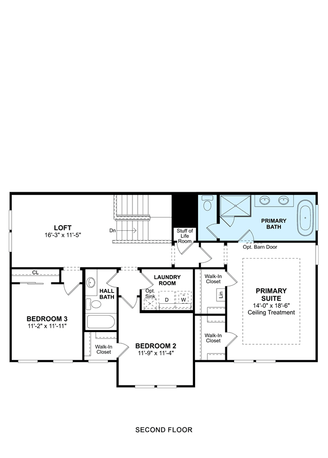
Inviting two-story home with ample hosting space. Secluded Extra Suite, great for multi-generational families or guests. Private home office makes working from home easy. Two dining spaces, perfect for large gatherings. Open kitchen with large island and vaulted ceiling. Tranquil primary suite with dual vanity sinks in primary bath.