































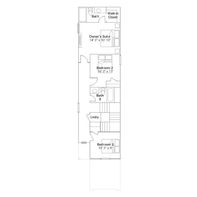
This two-story home features a functional layout, with the first floor dedicated to shared living. The kitchen features a wraparound countertop that overlooks the family room with access to the backyard. A powder room provides convenience. On the second floor are all three bedrooms including the owners suite with an en-suite bathroom and walk-in closet.