










Get additional information including price lists and floor plans.
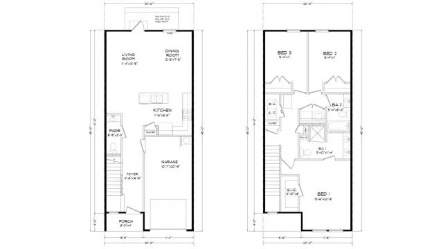
Welcome to the Sabal Townhome, a new home floor plan in Forest Shores Villas located in the highly visited Mary Esther, Florida. The Sabal Townhome features 2 floor plans, an interior and exterior unit. These thoughtfully designed townhomes offer either 4 bedrooms and 2.5 bathrooms or 3 bedrooms and 2.5 bathrooms. The single townhome has a 1-car garage, and the exterior unit has a 2-car garage. As you enter the exterior unit on the first floor, you are met with the foyer featuring a half bathroom perfect for guests. Walking past the foyer is a large open concept living space including the kitchen, living room and dining space. The kitchen includes quartz countertops, under mount sink, smooth top range, stainless steel appliances, pantry, stylish shaker cabinetry, and a center island. With natural light and nearby patio access, the living and dining area are inte...
Stay informed with Livabl updates on new community details and available inventory.