












































































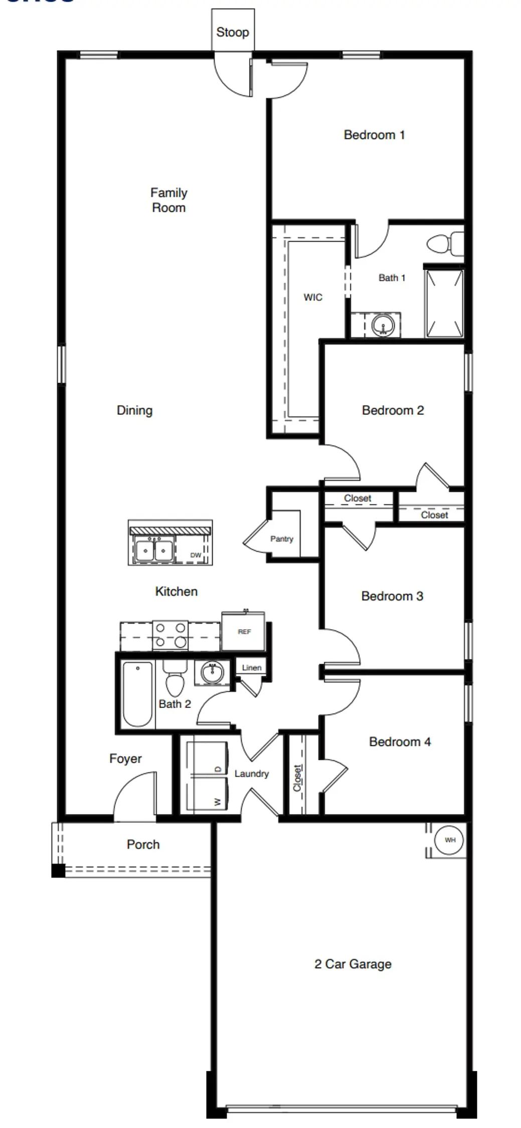
The Elk is one of our new one-story floor plans offering 4 bedrooms, 2 bathrooms, and 1,573 square feet of comfortable living space, featured in the Deer Meadows community in Odessa, TX. The Elk features a sturdy siding exterior with classic brick accents, creating charming curb appeal that is sure to turn heads. Step past the inviting front porch and let the gourmet kitchen greet you as you enter into the home. The kitchen features granite countertops, shaker style cabinets, stainless steel appliances, and an open concept floor plan that allows the kitchen to flow seamlessly into the spacious dining and living room areas. The primary bedroom is ideally located beside the family room, keeping you close to the action of your home. The primary bedroom offers plush carpeted floors, ideal relaxation space, and a private en suite bathroom complete with a beautiful van...
Stay informed with Livabl updates on new community details and available inventory.