
































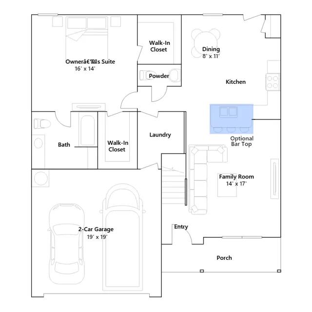
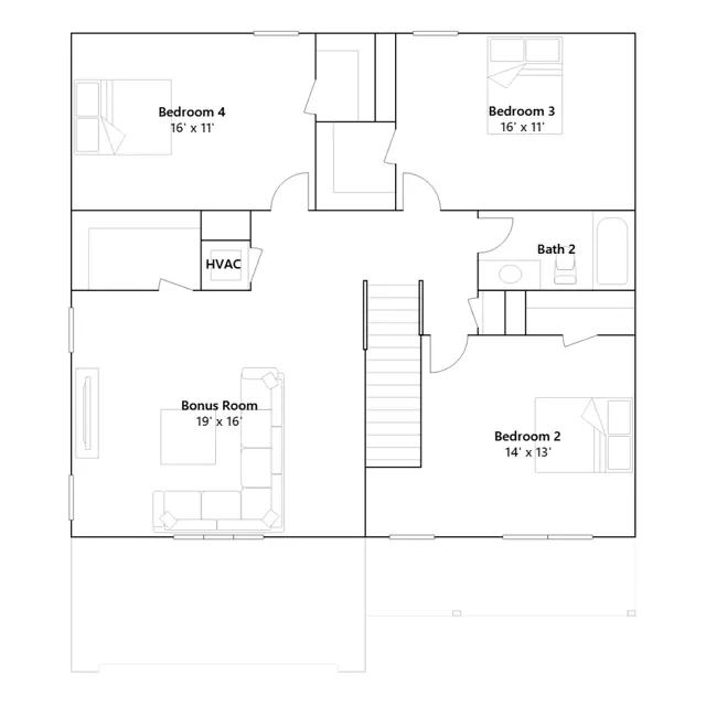
This new two-story home is host to a spacious and flexible open-concept layout on the first floor, with convenient access to an inviting front porch. A first-floor owners suite offers a private retreat with access to a full bathroom and walk-in closet. Three additional bedrooms are located on the second floor surrounding a versatile bonus room.
Stay informed with Livabl updates on new community details and available inventory.