








































































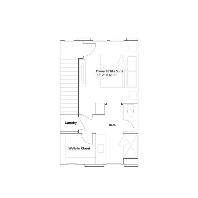
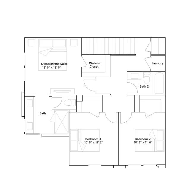
On the first floor of this new three-story townhome is a convenient office, making it easy to focus on important tasks throughout the week. An open-concept floorplan with convenient access to a covered deck on the second floor encourages simple entertaining and multitasking. Three bedrooms can be found on the third level, including the luxe owners suite with a full bathroom.
Stay informed with Livabl updates on new community details and available inventory.