
































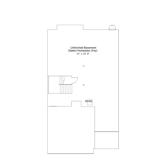
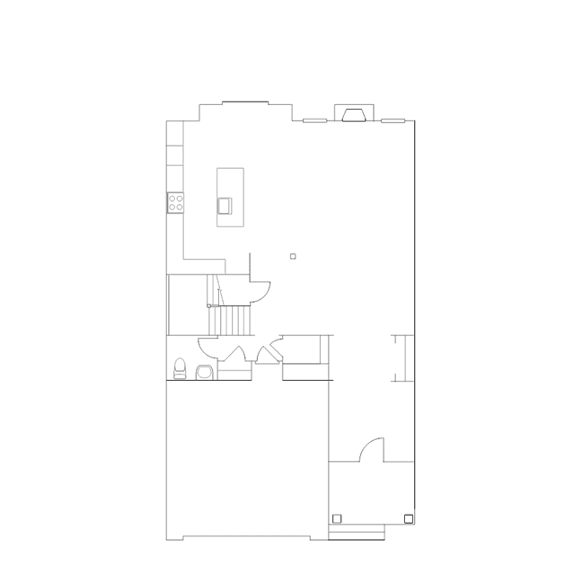
This two-story home offers a smart layout that makes good use of the available space. On the first floor is an open concept Great Room with a warm fireplace that flows to the kitchen and dining room. On the second floor are three bedrooms, including the owners suite which has a private bathroom and walk-in closet. Homeowners also have the option to include a finished basement at select homesites.