



































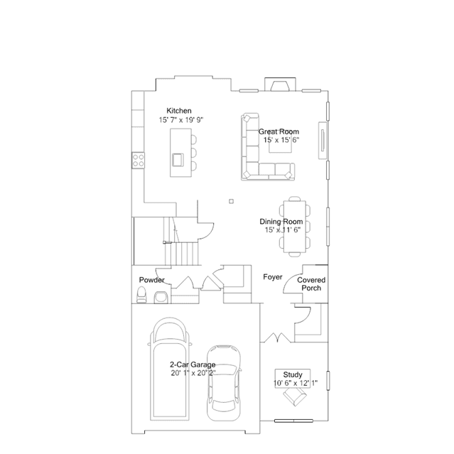
The first level of this two-story home is host to a spacious open floorplan where the kitchen, Great Room and dining room share a footprint. A nearby private study is ideal as a home office or workout space. All three bedrooms occupy the second floor, including the luxe owners suite with an en-suite bathroom and two walk-in closets. Homebuyers have the option to finish the basement for additional shared living space.