






























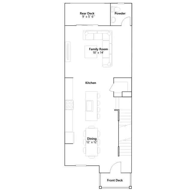
This new four-story townhome features a versatile flex space on the first floor, with an inviting open layout on the second level consisting of the kitchen, family room and dining area. Two bedrooms can be found on the third story, including the luxurious owners suite, complete with an en-suite bathroom, walk-in closet and access to a private deck. An additional bedroom and a loft make up the fourth level.