

























































Get additional information including price lists and floor plans.
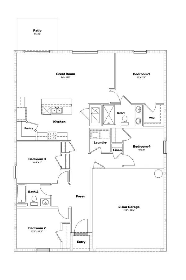
Step inside the Freeport, a beautiful one-story home located in McGinley Landing in Ocala, Florida. The Freeport optimizes living space and features an open-concept kitchen with quartz countertops overlooking the great room and outdoor patio. The kitchen features stainless-steel appliances, including a built-in dishwasher, range, and microwave. The primary bedroom is located in the rear of the home for privacy and has an ensuite bathroom with quartz countertops and a spacious walk-in closet. Two additional bedrooms at the front of the home are separated by the second bathroom and include carpeted floors and closets in each room. The third bedroom is located nearby the dedicated laundry room. Like all homes in McGinley Landing, the Freeport is complete with a state-of-the-art smart home system that keeps you connected to your home at all times, whether you'r...
Stay informed with Livabl updates on new community details and available inventory.