





























































Get additional information including price lists and floor plans.
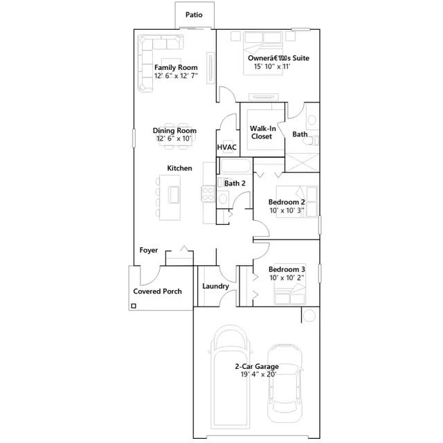
This single-story home shares an open layout between the kitchen, dining areaandfamily room for easy entertaining,along withaccess to an outdoor space for year-round outdoor lounging. A luxe owner's suite is in the rear of the home and comes complete with an en-suite bathroom and walk-in closet.There are three secondary bedrooms at the front of thehome, ideal for overnight guests or residents needing additional privacy, as well asa flex space that can transform to meet the households needs.
Stay informed with Livabl updates on new community details and available inventory.