



























































Get additional information including price lists and floor plans.
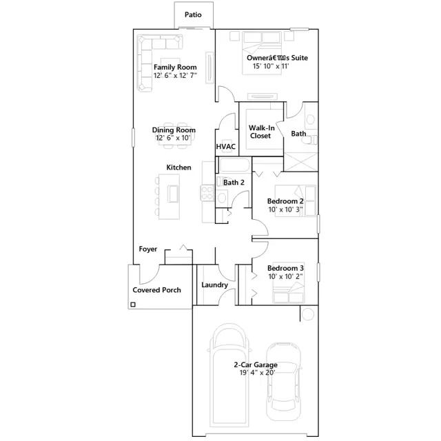
This new single-level home boasts a low-maintenance layout. Off the foyer, an open-concept floorplan combines the kitchen with the living and dining areas, and a convenient patio offers seamless indoor-outdoor transitions. Three bedrooms are tucked away to the side of the home, including the luxe owners suite in a private back corner.
Stay informed with Livabl updates on new community details and available inventory.