






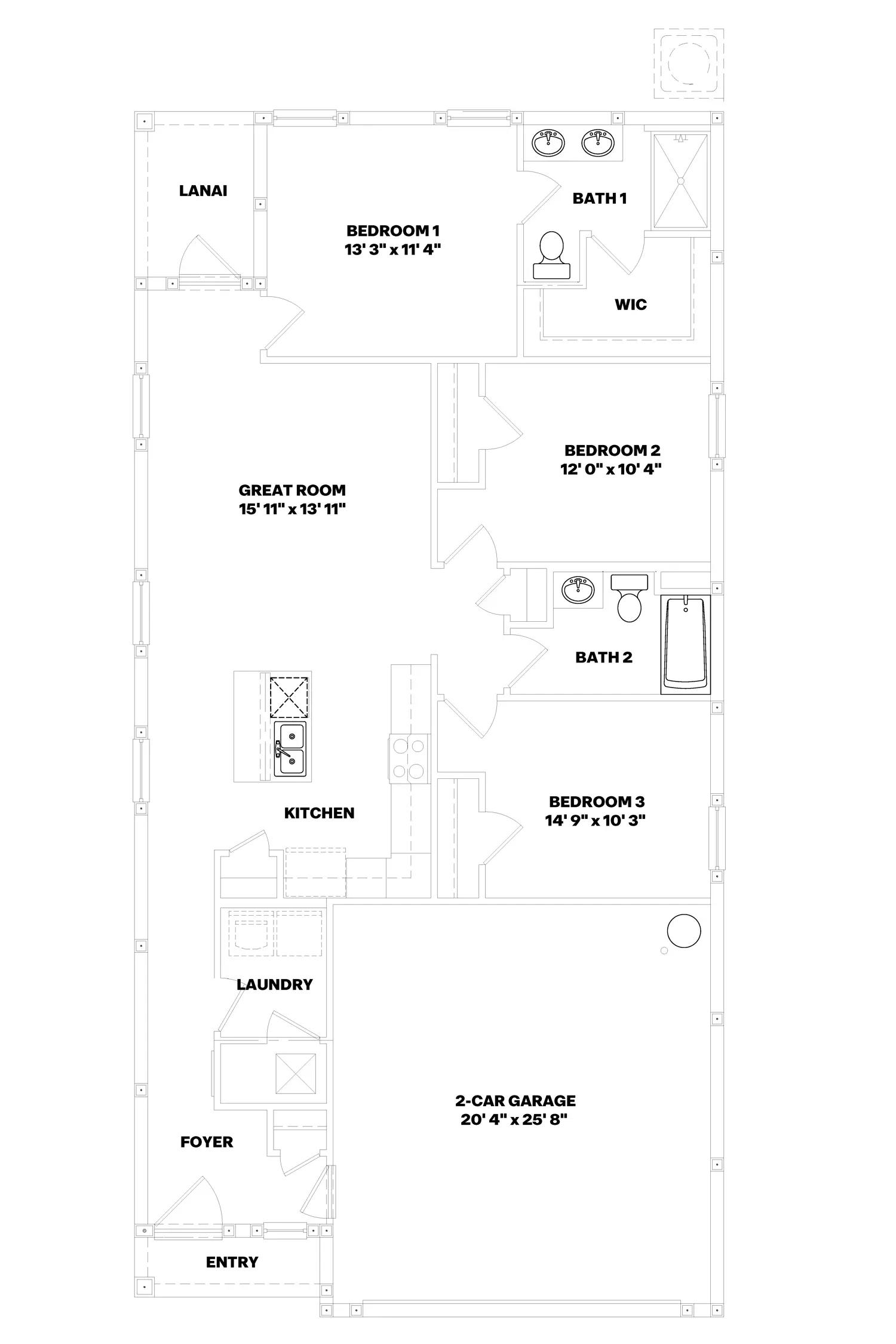
The Downing floorplan is a smartly designed single-story home that offers comfort, efficiency, and modern style across 1,302 square feet of living space. Available in Emerson Pointe in Ocala, Florida, and featuring 3 bedrooms, 2 bathrooms, and a 2-car garage, this home is ideal for anyone looking for easy, low-maintenance living. At the heart of the home is a spacious kitchen with a central island, stainless-steel appliances, and ample cabinet space, perfect for everyday cooking and casual gatherings. The open-concept layout flows effortlessly into the dining and living areas, creating a warm and inviting space for family and friends. The Owner's Suite offers a private retreat with a spacious walk-in closet and ensuite bathroom with a double vanity sink and quartz countertops. The two additional bedrooms share the second bathroom, also with quartz count...
Stay informed with Livabl updates on new community details and available inventory.