hero-image-0

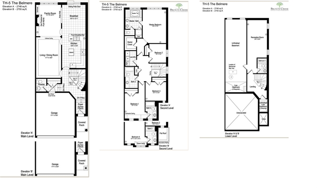
The Belmere Plan

Bronte Creek by Monarch
Sold
Sold
4
From 2,748
unit-banner-imageunit-banner-imageunit-banner-image
The Belmere Plan details
The Belmere Plan is now sold.
Check out available nearby plans below.