hero-image-0
hero-image-1

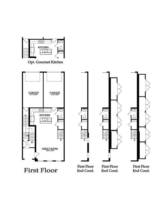
Lafayette

By

Pulte Homes

   |   

MetroWest

MetroWest
Sold
Sold
3
2
1
1,419
Lafayette details
unit-banner-image
unit-banner-image
unit-banner-image
Lafayette is now sold.
Check out available communities below.