






















































Get additional information including price lists and floor plans.
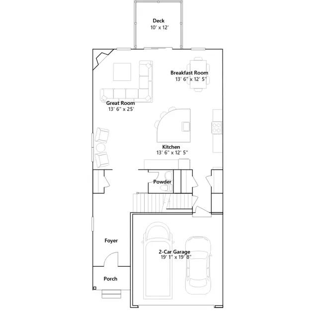
This new construction townhome spans two floors, offering a perfect blend of comfort and style. The heart of the first floor is an inviting Great Room with a cozy corner fireplace. It flows seamlessly into the gourmet kitchen and adjacent breakfast room, ideal for both entertaining and everyday living. Upstairs, a central loft provides a versatile space. It is surrounded by two secondary bedrooms and the owner's suite, which offers a private retreat complete with an adjoining bathroom and two walk-in closets for ample storage. A finished basement level and included deck provide space for a multitude of needs.
Stay informed with Livabl updates on new community details and available inventory.