




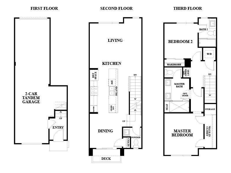
Choose from a wide variety of solar-powered townhomes at Ice House in West Oakland
There are currently 15 lots available, with many more scheduled for future releases.

City Ventures releases new phase of townhomes at Ice House in West Oakland
A new phase of solar townhomes at Ice House is now available in West Oakland, CA, a neighborhood home to a vibrant arts scene and rich history.

New City Ventures communities offer solar all-electric homes in West Oakland
Offering innovative designs and energy-saving amenities, City Ventures is set to unveil its newest communities in Oakland — Station House South and Ice House.