The Chapter
Downtown Castro Valley, Castro Valley
Waterside at Alameda Marina
East End, Alameda
Castro Valley - The Chapter
Skyline
Northern Waterfront, Alameda
Monarch Bay Shoreline
Mulford Gardens, San Leandro
921 98th Avenue Condos & Townhomes
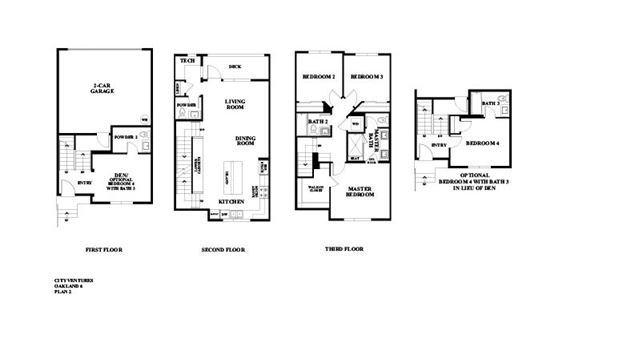
Elmhurst Park, Oakland
Island View at Alameda Marina
2015 Grand Street Townhomes