


























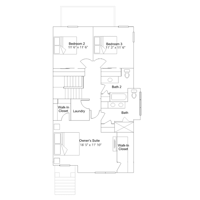
This three-story home has a simple layout that makes good use of the available space. The front door leads to a storage space with a 2-bay garage in back. Upstairs is an open concept living area that includes a Great Room, dining room, kitchen and flex space with a deck attached. On the third floor, two bedrooms are tucked into the back, while the owners suite is down the hall with a private bathroom.