The Hampton
Hickory Creek
Downtown South Lyon, South Lyon
The Princeton
The Sequoia
Windridge Estates
Lyon
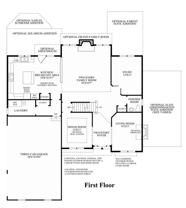
The Berkeley
The Charleston
The Biscayne
The Huntington