New Homes for Sale
Articles
Professionals
Log in
Sign up
Photos 1
Videos 0
Map
Interactive floor plan 0
Virtual 0
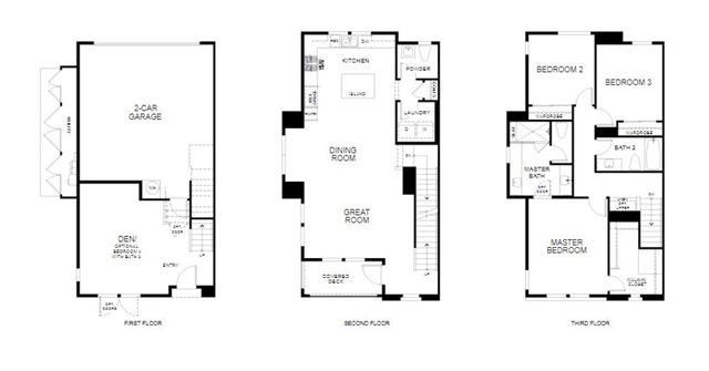
Cascade Plan
By
City Ventures
|
Ascend at Hamilton Field
Community
Available homes
Get updates
Save
Request info
Request info
Community
Available homes
Request info
Get updates
Save
Request info
Ascend at Hamilton Field
Get updates
Request info
Sold
Sold
3
2
1
From 1,840
Cascade Plan details
Address:
Novato, CA 94949
Plan type:
Two+ Story
Beds:
3
Full baths:
2
Half baths:
1
SqFt:
From 1,840
Ownership:
Fee simple
Interior size:
From 1,840 SqFt
Lot pricing included:
Yes
Cascade Plan is now sold.