hero-image-0
Seymour Village Phase 3
Sold
Sold
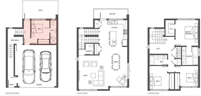
3
2
1
2,043
A1 - SL57 details
unit-banner-image
unit-banner-image
unit-banner-image
A1 - SL57 is now sold.
Check out available nearby condos below.