hero-image-0
Northlands Fairway Living
Sold
Sold
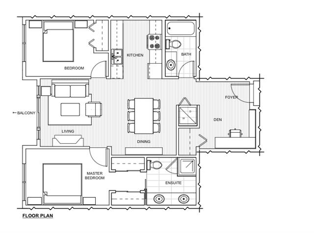
2
2
1
From 948
unit-banner-imageunit-banner-imageunit-banner-image
D2 Plan details
D2 Plan is now sold.
Check out available nearby plans below.