






























































Get additional information including price lists and floor plans.
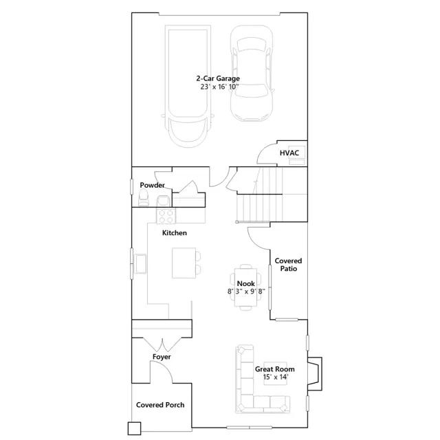
A foyer with a generous coat closet leads into a spacious open floorplan on the first level of this two-story home. The Great Room, U-shaped kitchen and nook provide a comfortable and effortless communal space with direct access to the covered patio. All four bedrooms are situated upstairs, including the owners suite with a private bathroom and walk-in closet.
Stay informed with Livabl updates on new community details and available inventory.