


































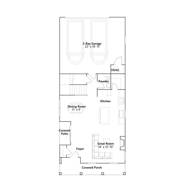
A spacious covered porch leads into this two-story home, where the first level is occupied by the spacious open floorplan shared between the living and dining spaces. Upstairs is a versatile loft and all three bedrooms, including the luxurious owners suite with a spa-like bathroom and walk-in closet.
Stay informed with Livabl updates on new community details and available inventory.