















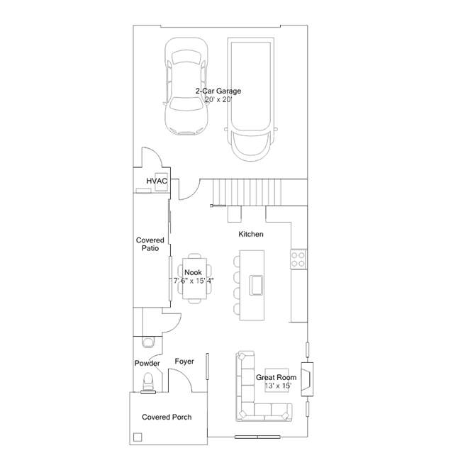
Multitasking and entertaining is made simple among an open floorplan shared between the Great Room, kitchen and nook on the first level of this two-story home. Sliding glass doors lead to the outdoor space. All three bedrooms are located upstairs, including the restful owners suite. The two secondary bedrooms share a convenient Jack-and-Jill style bathroom in between them.
Stay informed with Livabl updates on new community details and available inventory.