


















Get additional information including price lists and floor plans.

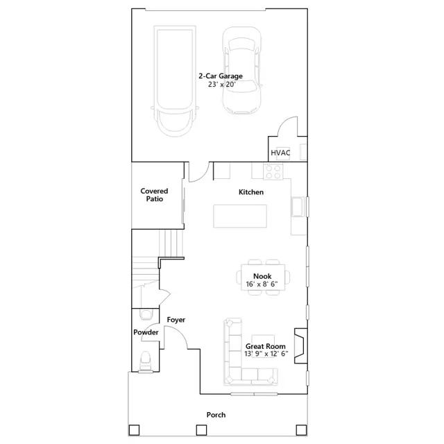
The Great Room, kitchen and nook are situated on the first level of this two-story home among an open concept design, featuring sliding glass doors that lead to the covered patio for effortless indoor-outdoor living and entertaining. Four bedrooms occupy the top level, including the owners suite complete with a walk-in closet and attached bathroom.
Stay informed with Livabl updates on new community details and available inventory.