hero-image-0
hero-image-1

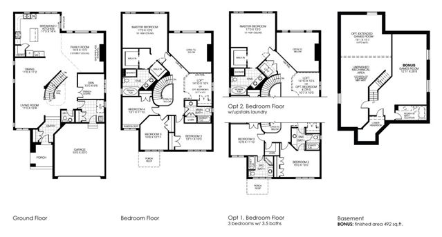
Portland (Pacific Series) Plan

The Creek - Single-Family Home...
Sold
Sold
4
2
1
From 2,914
unit-banner-imageunit-banner-imageunit-banner-image
Portland (Pacific Series) Plan details
Portland (Pacific Series) Plan is now sold.
Check out available nearby plans below.

Interested? Receive updates

Stay informed with Livabl updates on new community details and available inventory.