


























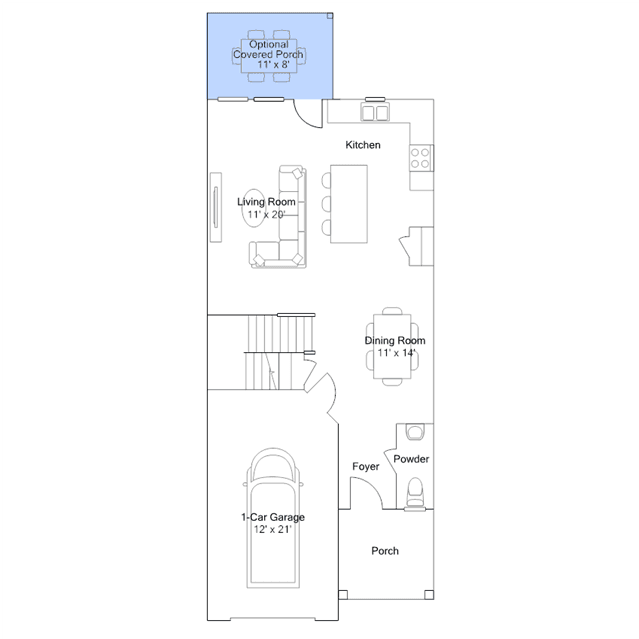
The first floor of this two-story townhome showcases the gracious living room which has direct access to the cozy dining room, well-equipped kitchen and attached rear patio. On the second level are two secondary bedrooms, while down the hall is the sprawling owners suite comprised of a spacious bedroom, attached bathroom and walk-in closet. A practical garage completes the home.