hero-image-0
hero-image-1
hero-image-2
hero-image-3

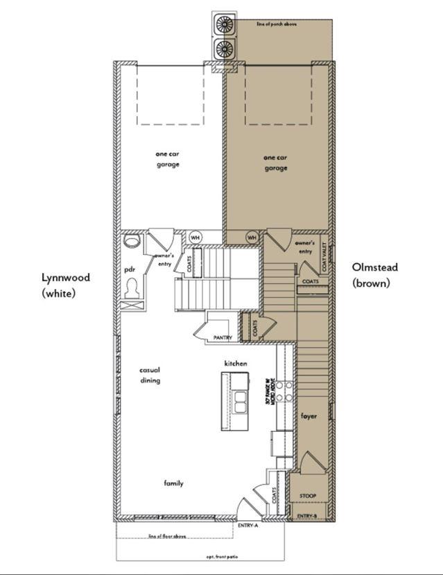
Olmstead Plan

Town Center Overlook
Not Available
Not available
Pricing unavailable
3
3
2
1
From 1,896
unit-banner-imageunit-banner-imageunit-banner-image
Olmstead Plan details

Contact sales center

Get additional information including price lists and floor plans.

Interested? Receive updates

Stay informed with Livabl updates on new community details and available inventory.