



























Get additional information including price lists and floor plans.
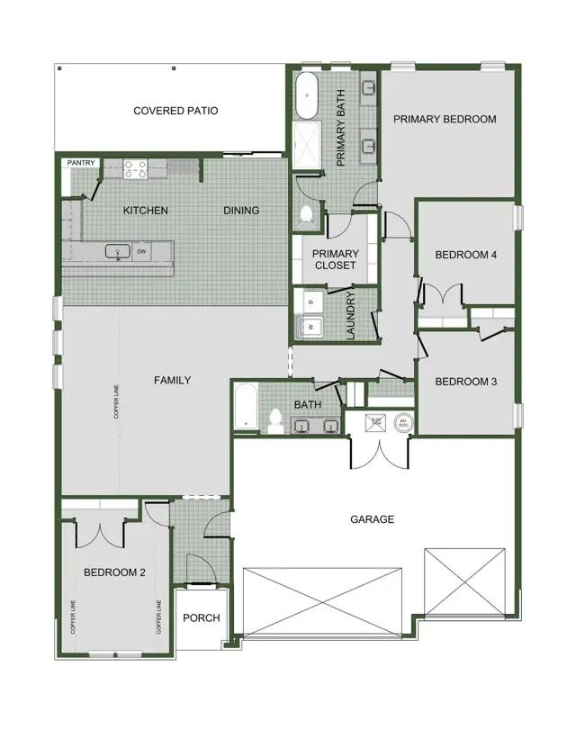
This spacious 34 bedroom, 2-bathroom home offers 1,950 square feet of smart, stylish living. From the moment you step inside, 10-foot ceilings in the entryway, kitchen, and living room to create a grand, open atmosphere. The primary bathroom includes dual vanities for added comfort, and a flexible fourth bedroom option lets you customize the space to fit your lifeperfect for a home office, guest suite, or creative studio.As part of our 1950 3-Car Series, this plan also includes an upgraded third-car garage, providing extra space for storage, hobbies, or additional vehicles.With the luxury feel of a larger home and a layout designed around your lifestyle, this plan delivers more of what matters, right where you need it.
Stay informed with Livabl updates on new community details and available inventory.