hero-image-0
hero-image-1

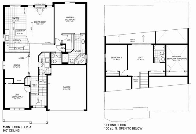
Kingsley w/ Loft Plan

Fernwood
Sold
Sold
2
3
1
From 2,069
unit-banner-imageunit-banner-imageunit-banner-image
Kingsley w/ Loft Plan details
Kingsley w/ Loft Plan is now sold.
Check out available communities below.