






Empire Communities recognized with multiple awards in southwestern Ontario and Texas
Despite a challenging year for the entire new home industry, Empire Communities has a lot to celebrate.

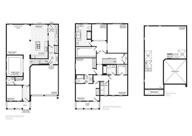
Empire Communities announces a new release of homes at Imagine in Niagara Falls this weekend
Doors open at 11am and lots will be released on a first come, first served basis.