hero-image-0
Deerfield Estates by Pinewood ...
Sold
Sold
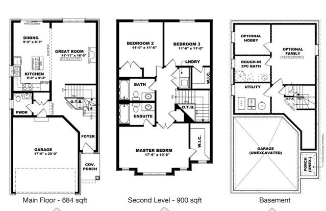
3
2
1
1,604
Lot 112 Meritage details
unit-banner-image
unit-banner-image
unit-banner-image
Lot 112 Meritage is now sold.
Check out available nearby homes below.